87 кв.м.
Квартира класса De Luxe у Кремля, 87 м²
Лот
52657949Комнат
2Цена за м2
1 931 035 руб.Этаж
2Расположение
- Локация: Москва
- Район: Тверской
- Адрес: Москва, Тверской район, Дмитровка М. ул., д.3
- Метро: Охотный Ряд
- Пешком до метро: 3 минут
- Показать на карте
Роскошная квартира 87 м2 рядом с Большим театром и Кремлем в уникальном, реставрированном особняке 19 века.
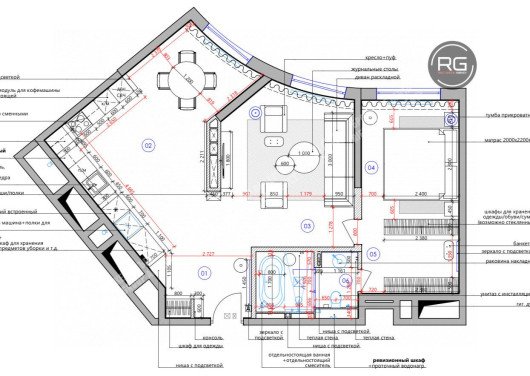
Эргономичная планировка представлена следующей конфигурацией:
-Светлая и просторная кухня-гостиная 37м2 с тремя окнами;
-Холл 9.3м2 + гостевой санузел;
-Мастер спальня площадью 38.1м2, удобная ванная комната и гардероб;
Для жителей особняка предусмотрена вся необходимая инфраструктура, включая приватный фитнес-клуб, SPA-зону, депозитарий.
Комплекс представляет собой закрытый квартал c подземным трехуровневым паркингом на 207 машиномест, станцией для зарядки электрокаров, автомойкой и механической мойкой колес, лифтом для спорткаров. На всем периметре комплекса установлено видеонаблюдение, круглосуточная охрана, пропускная система и консьерж.
Завершение строительства – 3 квартал 2022 года.
3 минуты пешком до метро (Охотный Ряд, Театральная) и главных достопримечательностей города - Кремль, Большой театр, ЦУМ.
Особенности
- Ипотека
- Лифт
Подробнее об объекте
- Год постройки: 2021 г.
- Тип сделки: продажа
- Тип недвижимости: жилая
- Категория: квартира
- Тип дома: Кирпично-монолитный
- Количество комнат: 2
- Комнатность: 2
- Общая площадь: 87 кв.м.
- Жилая площадь: 26.4 кв.м.
- Площадь кухни: 37.1 кв.м.
- Цена за м²: 1 931 035 руб.
- Этаж: 2
- Этажей в доме: 6
- Высота потолков: 4.45
- Вид из окон: Во двор и на улицу
- Ремонт: дизайнерский
- Планировка: Смежно-изолированная
- Тип отопления: Центральное
- Санузел: 4
- Раздельный санузел: 4
- Апартаменты: Да
- Новостройка: Да
Персональный менеджер объекта, Михаил Овсянников
Rielt Group Agency — это команда профессионалов, которые ставят своей целью не просто закрыть очередную сделку, а оказать заказчику всестороннюю помощь. Это информационная поддержка, продвижение, сбор документов, консультации, проведение переговоров.
Наши постоянные клиенты — это сетевые компании, предприятия, физические лица. За много лет мы накопили опыт работы в разных городах и регионах России, включая Санкт-Петербург, Москву и Крым.
Команда Rielt Group Agency избавит Вас от рисков и тревог, от бумажной волокиты и от необходимости лично контролировать все нюансы.
Хотите получить индивидуальный подбор объектов от агента?
Хотите приобрести или взять в аренду недвижимость? Вам поможет команда Rielt Group Agency. Обращаясь к нам, Вы получаете всестороннюю поддержку — от начальной консультации до заключения договора.
Все объекты агентаПохожие объекты
Устали
выбирать сами?
Соблюдение интересов клиента, удобство и высокое качество оказываемых услуг — наш главный приоритет. Доверяя нам поиск и подбор объектов, Вы экономите свое время и получаете предложения, точно подходящие под Ваш запрос. В Ваше распоряжение будут предоставлены варианты из актуальной и постоянно пополняемой базы Rielt Group Agency. Став нашим клиентом, Вы будете раньше других получать информацию о новых объектах, еще до того, как сведения о них появятся в открытых интернет-источниках.
Хотите узнавать об объектах, не представленных в открытом рынке? Ваш персональный менеджер будет рад предоставить Вам и такую информацию.
Всё ещё остались вопросы?
Хотите подробнее узнать о представленных вариантах? Желаете уточнить подробности сотрудничества с Rielt Group Agency? Просто укажите свое имя и оставьте телефон. Вскоре наш менеджер свяжется с Вами, чтобы подробно ответить на все вопросы.




































