61,6 кв.м.
Видовая 2х ком. кв. Бизнес Класса, 61,6 м²
Лот
45537599Комнат
2Цена за м2
368 507 руб.Этаж
12Расположение
- Локация: Москва
- Район: Алексеевский
- Адрес: Москва, Алексеевский район, Новоалексеевская ул., д.16, к.4
- Метро: Алексеевская
- Пешком до метро: 15 минут
- Показать на карте
Предлагаю Вашему вниманию апартамент в ЖК Бизнес-класса "Серебряный Фонтан"
Об объекте:
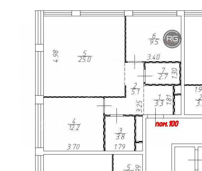
- функциональная, свободная планировка позволит сделать две полноценные спальни (9.5м2 + мастер-спальня 12,5м2) и кухню-гостиную 25м2.
- Квартира расположена на 12 этаже, огромные окна (в том числе угловые в гостиной) с завораживающим панорамным видом на парк Сокольники и город.
ЖК "Серебряный Фонтан"- флагманский проект строительной компании "Эталон".
Кирпично-монолитный дом, лучшие окна- Schuco, лифты- KONE премиальной линейки, система кондиционирования, дизайнерские входные группы, удобные места общего пользования, подземный паркинг, и вся инфраструктура создана для комфортной жизни.
Комплекс расположен вблизи от Центра Москвы, 3-х минутах от третьего транспортного кольца, в пешей доступности от ст.м. "Алексеевская", удобный выезд на пр. Мира. ВСЕГО 20 минут от Кремля!
Корпус введен в эксплуатацию.
Продажа от собственника, полная цена в ДКП, подходит под ипотеку возможен разумный торг.
Сотрудничаем с агентствами, направим презентацию!
Звоните и записывайтесь на просмотр.
Особенности
- Ипотека
- Лифт
Подробнее об объекте
- Название ЖК: ЖК Серебряный фонтан
- Год постройки: 2022 г.
- Тип сделки: продажа
- Тип недвижимости: жилая
- Категория: квартира
- Тип дома: Кирпично-монолитный
- Количество комнат: 2
- Комнатность: 2
- Общая площадь: 61.6 кв.м.
- Жилая площадь: 22.5 кв.м.
- Площадь кухни: 25 кв.м.
- Площадь комнаты: 13, 9.5
- Площадь прихожей: 4 кв.м.
- Цена за м²: 368 507 руб.
- Этаж: 12
- Этажей в доме: 20
- Высота потолков: 3
- Вид из окон: Во двор и на улицу
- Ремонт: требует ремонта
- Планировка: Изолированная
- Тип отопления: Центральное
- Санузел: 2
- Раздельный санузел: 2
- Апартаменты: Да
- Новостройка: Да
Персональный менеджер объекта, Сильвестр Багрянцев
Rielt Group Agency — это команда профессионалов, которые ставят своей целью не просто закрыть очередную сделку, а оказать заказчику всестороннюю помощь. Это информационная поддержка, продвижение, сбор документов, консультации, проведение переговоров.
Наши постоянные клиенты — это сетевые компании, предприятия, физические лица. За много лет мы накопили опыт работы в разных городах и регионах России, включая Санкт-Петербург, Москву и Крым.
Команда Rielt Group Agency избавит Вас от рисков и тревог, от бумажной волокиты и от необходимости лично контролировать все нюансы.
Хотите получить индивидуальный подбор объектов от агента?
Хотите приобрести или взять в аренду недвижимость? Вам поможет команда Rielt Group Agency. Обращаясь к нам, Вы получаете всестороннюю поддержку — от начальной консультации до заключения договора.
Все объекты агентаПохожие объекты
Устали
выбирать сами?
Соблюдение интересов клиента, удобство и высокое качество оказываемых услуг — наш главный приоритет. Доверяя нам поиск и подбор объектов, Вы экономите свое время и получаете предложения, точно подходящие под Ваш запрос. В Ваше распоряжение будут предоставлены варианты из актуальной и постоянно пополняемой базы Rielt Group Agency. Став нашим клиентом, Вы будете раньше других получать информацию о новых объектах, еще до того, как сведения о них появятся в открытых интернет-источниках.
Хотите узнавать об объектах, не представленных в открытом рынке? Ваш персональный менеджер будет рад предоставить Вам и такую информацию.
Всё ещё остались вопросы?
Хотите подробнее узнать о представленных вариантах? Желаете уточнить подробности сотрудничества с Rielt Group Agency? Просто укажите свое имя и оставьте телефон. Вскоре наш менеджер свяжется с Вами, чтобы подробно ответить на все вопросы.






































































