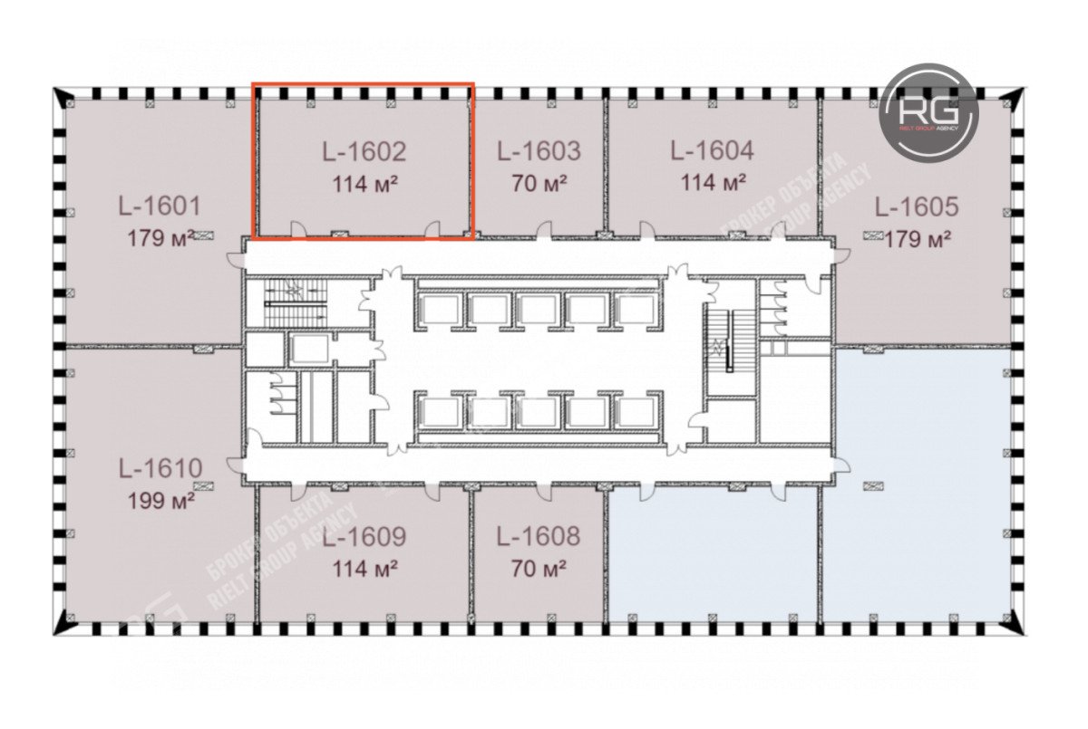
114 кв.м.
114м2 офис А класс под инвестиции
Лот
29072157Цена за м2
394 737 руб.Этаж
16Расположение
- Локация: Москва
- Район: Академический
- Адрес: Москва, Академический район, Вавилова ул., д.13А
- Метро: Ленинский проспект, Площадь Гагарина
- Пешком до метро: 5 минут
- Показать на карте
Продажа напрямую от собственника, сотрудничаем с агентствами!
Предлагаем к продаже офисный блок 114м2 (с возможностью деления на два самостоятельных, равнозначных блока) класса А, в ликвидной для сдачи в аренду локации. Отличный вариант для дальнейшей перепродажи, прирост цены к сдаче в Экспл. до +40%.
ВОЗМОЖНА РАССРОЧКА!
Ультрасовременное здание, расположенное у м. Ленинский пр. рядом с Центром Москвы и удобным въездом на ТТК. Офис с панорамным остеклением естественного проветривания, высокими потолками, глубина помещения 10м.
Современный офисный центр состоит из 23 этажей, на первом этаже располагается дизайнерская входная зона- лобби с потолками 4.7м;
Офис оснащен современной инженерией, предусмотрено 12 лифтов премиальной линейки;
Прилегающая территория в составе офисного квартала организована с привлечением топовой ландшафтной студии, все пространства созданы для комфорта резидентов.
Офисный облик здания и вся эргономика создана одной из лучших в РФ архитектурных бюро, все это гарантирует удобство, комфорт сотрудникам и подчеркнет престиж вашей компании.
Помещение передается в отделке Shell&Core. Ликвидный вариант для сдачи в аренду, окупаемость объекта порядка 10 лет. Готовность в 25г, более подробная информация по запросу.
Особенности
- Лифт
- Паркинг
Подробнее об объекте
- Год постройки: 2025 г.
- Тип сделки: продажа
- Тип недвижимости: коммерческая
- Категория: коммерческая
- Тип дома: Монолитный
- Общая площадь: 114 кв.м.
- Цена за м²: 394 737 руб.
- Этаж: 16
- Этажей в доме: 23
- Высота потолков: 3.6
- Вид здания: Бизнес-центр
- Ремонт: косметический
- Фундамент: Вход с улицы (общий)
- Тип отопления: Центральное
- Теплоснабжение: Да
- Тип канализации: Централизованная
- Электричество кВт: 30
- Тип электроснабжения: Да
- Электромощность: 30
- Санузел: 2
- Раздельный санузел: 2
- Новостройка: Да
- Класс офиса: A+
- Тип коммерческой недвижимости: free purpose
- Офис в БЦ: Да
- Фонд: нежилой
Персональный менеджер объекта, Михаил Овсянников
Rielt Group Agency — это команда профессионалов, которые ставят своей целью не просто закрыть очередную сделку, а оказать заказчику всестороннюю помощь. Это информационная поддержка, продвижение, сбор документов, консультации, проведение переговоров.
Наши постоянные клиенты — это сетевые компании, предприятия, физические лица. За много лет мы накопили опыт работы в разных городах и регионах России, включая Санкт-Петербург, Москву и Крым.
Команда Rielt Group Agency избавит Вас от рисков и тревог, от бумажной волокиты и от необходимости лично контролировать все нюансы.
Хотите получить индивидуальный подбор объектов от агента?
Хотите приобрести или взять в аренду недвижимость? Вам поможет команда Rielt Group Agency. Обращаясь к нам, Вы получаете всестороннюю поддержку — от начальной консультации до заключения договора.
Все объекты агентаПохожие объекты
Устали
выбирать сами?
Соблюдение интересов клиента, удобство и высокое качество оказываемых услуг — наш главный приоритет. Доверяя нам поиск и подбор объектов, Вы экономите свое время и получаете предложения, точно подходящие под Ваш запрос. В Ваше распоряжение будут предоставлены варианты из актуальной и постоянно пополняемой базы Rielt Group Agency. Став нашим клиентом, Вы будете раньше других получать информацию о новых объектах, еще до того, как сведения о них появятся в открытых интернет-источниках.
Хотите узнавать об объектах, не представленных в открытом рынке? Ваш персональный менеджер будет рад предоставить Вам и такую информацию.
Всё ещё остались вопросы?
Хотите подробнее узнать о представленных вариантах? Желаете уточнить подробности сотрудничества с Rielt Group Agency? Просто укажите свое имя и оставьте телефон. Вскоре наш менеджер свяжется с Вами, чтобы подробно ответить на все вопросы.














































